Descripción
Luz natural que conecta todos los ambientes
Como siempre en PHs Comfort Homes: a estrenar, sin expensas, sin comisiones y con transparencia.
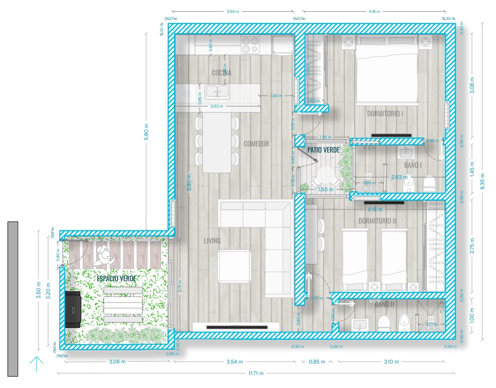
En PH tipo Casa Capri desde el hall de entrada accedemos al espacio verde privado con parrilla, un área funcional y bien pensada para aprovechar al aire libre: comer algo rico, sentarse un rato bajo el sol o simplemente cortar el día con un momento al aire libre.
Una puerta ventana de casi 3 metros conecta ese exterior con el living comedor de concepto abierto, que forma un ambiente amplio, integrado y cómodo.
La cocina moderna con península-desayunador se suma con equipamiento completo y una disposición práctica para el uso diario.
Desde el interior del PH, un patio verde central aporta luz natural al espacio social, los dos dormitorios y el baño en suite. Esa apertura genera una sensación de claridad, frescura y placer que recorre toda la casa.
El dormitorio principal cuenta con baño en suite y salida directa al patio. El segundo dormitorio, con una amplia ventana al mismo espacio, puede ser el cuarto de tus hijos, un dormitorio para recibir visitas o el lugar que necesitás hoy: versátil, luminoso y con privacidad. Este ambiente se vincula mediante un hall con el segundo baño completo, práctico y bien resuelto.
Tanto el espacio social como los dos dormitorios cuentan con calefacción por radiadores, preinstalación de aire acondicionado y conexiones para cable y USB. Los pisos son de porcelanato símil madera, y los dormitorios incluyen placards de piso a techo.
Las aberturas de doble vidrio ayudan a mantener la temperatura interior, aportando confort térmico y ahorro de energía.
Y a diferencia de muchas propuestas a estrenar, los ambientes ya cuentan con artefactos de iluminación LED instalados: un detalle que muestra que todo está listo de verdad.
PH tipo Casa Capri: luz y espacios que acompañan tu ritmo desde el primer día.
PHs Comfort Homes: a estrenar, sin expensas, sin comisiones y con transparencia.











